木工チームリーダーのガキです。サノ先生のいない11月6、7、8日と3日間で柱をすべて建て、後から入れられない貫を結び、腕木も納めつつ、外周足場を設けました。
サノ:すごい!よくがんばってくれたね。君たちはほんとうにいいチームだよ。感心感心。これで13、14日に上棟が迎えられそうだ。
ガキ:3日間、小塩で合宿でした。夜は寒かった。セキさんが日曜日に来てくれてお昼をつくってくれました。
サノ:月曜日は?
ガキ:自分たちで用意しました。
サノ:お疲れさまでした。今日はぼくたちがお昼をつくるので、こころおきなく仕事に励んでくれ。今日は?
ガキ:腕木の残りと両側の桁を仕込みます。立ちも直して、モミ子を打ちます。足場はカワサキさんに指導してもらい、内側を建てます。
サノ:さて、桁は4寸角材を金輪継で2〜3本を継ぐんだったね。うまく納まるかな?
ガキ:全長で13.5mありますからね。重ねほぞに楔を打ちます。腕木に載せる出桁も納めていいですか?
サノ:あれはダボで留めるけれども、ダボの準備ができていないんじゃない?今日は口合わせだね。
ガキ:何とかレッカーが来て梁を載せられる段取りまでできたようです。13日に梁を納めてしまいましょう。
サノ:こうして腕木が納まって並んでいる光景はいいね〜。部材が納められるにしたがって、整然、凛とした感じになって来て、嬉しいものです。
ガキ:いよいよ次回は上棟です。いつもよりも早く現場に到着するよう頑張って来ます!
(リーダーのガキさんでした)
PR
こんにちは!今年のインテリアコースを担当させてもらっている吉田です。
今年の課題は学校のすぐ近くの町家を食堂に改修するということで、
設計をインテリアチームが、施工を大工志望の学生有志が行っています。
最初は構想だけで自分達の思い思いの食堂を表現していたチームインテリアの面々も、
お施主さんとの会話を重ね、現場が動き出したことで
自分たちのプロジェクトだと自覚が出てきたようで・・・
最近はとっても頼もしく、積極的に動いてくれています。
さて、そんな食堂プロジェクトの現場から、
現在の進行状況をお伝えしますー!
この日は朝から学校の土壁教室に参加してくれた子ども達に
出水食堂の土壁を塗ってもらおう!ということで
ラチ現場主任のもと、インテリアチームも現場のお手伝い!
子ども達、立派に2枚の背の高い壁と垂れ壁3枚の荒壁を塗ってくれました!
いつもの練習用の壁と違い、この壁はずっと残るものなので
気持ちの入り方も違ったのではないでしょうか。

土壁教室終了後子どもたちを見送ってからも、仕上げの整え、ちりぎわの掃除や片付け等
残ってがんばってくれました。
私はひとり、学生が手伝った後の現場の左官屋さんもこんなしてはったんやろなぁと
しみじみ思いました。
この日子ども達に土を塗ってもらう壁を間に合わせるため、
前日は夜遅くまでラチ現場主任とタダ棟梁がもくもくと竹小舞編み&柱納めに励んでくれていました…。
みなさん本当にお疲れさまでした!!

(よしだ)
今年の課題は学校のすぐ近くの町家を食堂に改修するということで、
設計をインテリアチームが、施工を大工志望の学生有志が行っています。
最初は構想だけで自分達の思い思いの食堂を表現していたチームインテリアの面々も、
お施主さんとの会話を重ね、現場が動き出したことで
自分たちのプロジェクトだと自覚が出てきたようで・・・
最近はとっても頼もしく、積極的に動いてくれています。
さて、そんな食堂プロジェクトの現場から、
現在の進行状況をお伝えしますー!
この日は朝から学校の土壁教室に参加してくれた子ども達に
出水食堂の土壁を塗ってもらおう!ということで
ラチ現場主任のもと、インテリアチームも現場のお手伝い!
子ども達、立派に2枚の背の高い壁と垂れ壁3枚の荒壁を塗ってくれました!
いつもの練習用の壁と違い、この壁はずっと残るものなので
気持ちの入り方も違ったのではないでしょうか。
土壁教室終了後子どもたちを見送ってからも、仕上げの整え、ちりぎわの掃除や片付け等
残ってがんばってくれました。
私はひとり、学生が手伝った後の現場の左官屋さんもこんなしてはったんやろなぁと
しみじみ思いました。
この日子ども達に土を塗ってもらう壁を間に合わせるため、
前日は夜遅くまでラチ現場主任とタダ棟梁がもくもくと竹小舞編み&柱納めに励んでくれていました…。
みなさん本当にお疲れさまでした!!
(よしだ)
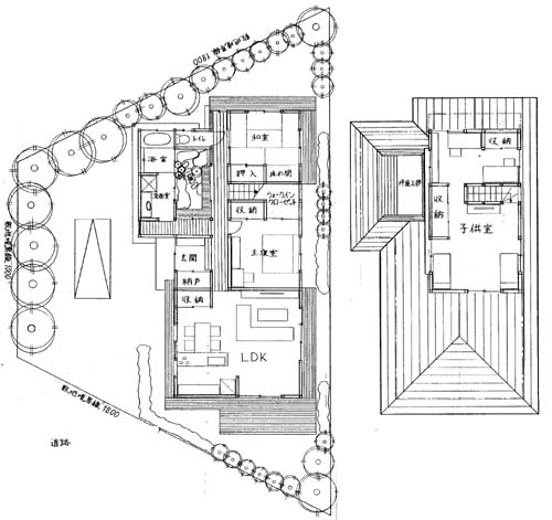
与えられた条件に対して僕たちのグループは、各家庭の内外に対する関係性が希薄になっていることを問題とし、「縁側を設けること」、「集まる家がそれぞれにつながりが持てるような住宅をめざすこと」をテーマとして設計に取り掛かりました。縁側を設けることで意識が自然と外に向きやすくなるはずである(自分以外との関わり)と考えたからです。
僕の住宅では明るく開放的な空間を創るために南側に大きな窓と少し広めの縁側(ウッドデッキに近いですが)を設け、家族が陽ざしと団欒を楽しめるようにし、西面につながる縁側では、近隣の人と腰をかけてゆっくりコミュニケーションがはかれるようにしました。これらは外に向けてオープンなものとしましたが、屋内でも「明るさと開放」を取り入れたかったので玄関の左手側に坪庭を設けました。個人の時間を過ごしやすい浴室、洗面室、老人室、廊下、階段から常に感じられるようにし、それぞれが完全な「個」(閉じた空間)にならないようにしました。

外観では、色味のやわらかさと横のラインを強調したかったので化粧材でのラインの強調と、屋根下端部の高さを一定にすることで強弱を表現できたのではないかなと感じています。横のラインを見せることで「独立して建っているだけ」ではなく、「周囲につながっている」ことを何気なく気づいてもらえるようにしたかったのです。一つの街並みを創るうえで各住宅の存在が「点」ではなく「線」でつながるように、一つ一つの住宅が互いに結びつき合う景観を目指した結果でした。
1年 西野 隆雅
今回の難しさは、貫を一緒に入れ込んで行かないといけないというところ。水平の動きと上下の動きが同時に求められるので、たいへん厄介です。
西側の方から柱を順番に立て、貫を通していくことにしました。後で通せる貫は後回しにして、つなぎ梁や力貫などを仕込みながら、組み付けていきます。
柱をペアーでつなぎ材を仕込みながら、起こすために、足場も組めず、脚立や梯子を使って組み付けています。それほど高くはないけれども、揺れる中での作業なので、結構こわいですよ。
今日のお昼は豚汁でした。爽やかな山の空気に温かい日差しが嬉しい気持ちのよい
ランチタイム。
貫を通すのがなかなかたいへん。手こずっている内に、陽がだんだん傾いてきて、手前の木立の間に沈んでしまいました。とたんに、ひんやりして来ます。
隅のユニットが何とか組み上がりました。ここから2列目に入ります。が、ここでまたトラブル発生。逆側の隅ユニットの1本の柱の仕事が反転していることが判明、また柱を抜いて、ほぞの作り直しです。今日は2列を完成できませんでした。
次は6日の土曜日です。日曜も月曜も行うので、3連日の作業。ここがもっとも重要な仕事となりますね。何とか3日間ですべての柱を組み付けてしまわないと、13日の上棟に間に合いません。みんな、頑張ろうぜ!
/(^_^) /
(カワサキ師匠にぱーまんと呼ばれているイワキでした。)
アンカーボルトを横目でにらみつつ、基礎石の上に墨付けをして行きます。土台はひのきの4寸角、すべてここ合併記念の森で生えていた材だそうで、なかなかいいひのきです。すでに1年生たちによってほぞ穴や柱にアリで食い込むように仕口が掘られています。うまく合うといいのですが。
今日のお昼は定番のカレーライス。ちょっと前におにぎりをいただいたのに、いくらでも食べれてしまいます。その後、さらにサンドイッチもいただきました。秋の食欲は深いです。
土台の裏側にボルトの位置を拾って、ドリルで穴を開け、天端に座彫りを入れます。後で埋木をしやすいように、ノミで四角に掘り直し、座金を納めてナットを締めます。
ここでは土台を座彫りでアンカーする方式と、長ナットでさらに上に来る力貫をも一緒に押さえる方式と、2種類のアンカーボルトが採用されています。ここまで、いい精度で来ていて、嬉しくなって来ました。
いつの間にか陽は傾いて山陰に。土台の納めはまだ全体の1/4ほどが残っています。
ここに来て、1年生の土台の加工の寸法まちがいが次々と発覚。手直し作業となりました。5時の終了まであと1時間しかありません。でも、ここからが今年のチームの強み、全員が動いて作業が進んで行きます。
さの先生:どうする?もう終えて明日にするか?
一同:いや、やってしまいましょう!
あたりはすでに薄暗く、ライトで照らしながらの作業となりました。手のあいている者は、道具を片付けよう。
5時半、すべての作業は終了。お疲れさまでした!
撤収!
(土台担当 ワダでした)
- メニュー
- 最新記事
(07/28)
(07/10)
(07/02)
(06/17)
(06/16)
- 京都建築専門学校
京都市のど真ん中府庁前で、創立60年の伝統を誇る小さいけれど真面目な建築学校です。ユニークで色々な経験を持った先生たちが揃っています。平成24年度入学願書受付中!
- ブログ内検索
Copyright © 京都建築専門学校 ニュースレター All Rights Reserved.


