後期には1、2年合同の授業、建築概論があります。その中で様々な建築関係職にある卒業生たちにミニレクチャーをお願いしています。今年は工務店から北村篤史さんにお越し願いました。

北村さんは15年前の卒業で、京都のゼネコン(建設会社)に勤めた後、家の工務店に移られました。現在は木造住宅を主に仕事をされています。今年の春に完成見学会の家でばったり出会って、今回のミニレクチャーをお願いしたものです。天然乾燥材や自然素材といった最近の良心的な木造の家づくりを手がけるだけあって、まじめで信頼される人柄がにじみ出ていると、生徒たちの感想です。

家づくりの現場の様子、工務店の監督とはどんな仕事をする人か、わかりやすく説明していただきました。誇張の無い、おだやかな語り口に、いつしか生徒たちも惹き付けられています。
北村君は決して在学中は目立って他をリードするということはない、成績も中ぐらいの、でも意欲的な生徒でした。こうしてお話を伺っていると、ほとんど学生時代と変わらぬ穏やかな中にも人格を感じる性格のままで、嬉しく感じました。こういう人なら、いい家をつくってくれるだろうな、と思えてしまいます。
今回のミニレクチャーのために、ずいぶん準備をしてくれたのだろうと思います。忙しい中、心より感謝です。きっと聞いていた生徒たちにも伝わったことでしょう。どんどんいい仕事をして、多くの方の信頼を身につけていただきたく思います。
(さのはるひと)
北村さんは15年前の卒業で、京都のゼネコン(建設会社)に勤めた後、家の工務店に移られました。現在は木造住宅を主に仕事をされています。今年の春に完成見学会の家でばったり出会って、今回のミニレクチャーをお願いしたものです。天然乾燥材や自然素材といった最近の良心的な木造の家づくりを手がけるだけあって、まじめで信頼される人柄がにじみ出ていると、生徒たちの感想です。
家づくりの現場の様子、工務店の監督とはどんな仕事をする人か、わかりやすく説明していただきました。誇張の無い、おだやかな語り口に、いつしか生徒たちも惹き付けられています。
北村君は決して在学中は目立って他をリードするということはない、成績も中ぐらいの、でも意欲的な生徒でした。こうしてお話を伺っていると、ほとんど学生時代と変わらぬ穏やかな中にも人格を感じる性格のままで、嬉しく感じました。こういう人なら、いい家をつくってくれるだろうな、と思えてしまいます。
今回のミニレクチャーのために、ずいぶん準備をしてくれたのだろうと思います。忙しい中、心より感謝です。きっと聞いていた生徒たちにも伝わったことでしょう。どんどんいい仕事をして、多くの方の信頼を身につけていただきたく思います。
(さのはるひと)
PR
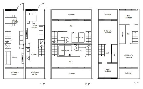
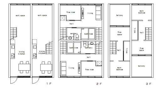
建築科2年の日下部です。前期の自由課題で集合住宅を制作しましたので、ご紹介いたします。

西面ファサード
京都は都市でありながら、他の都市とは違う独特の雰囲気があるように感じます。
それは京都に昔から住むひとたちの間にある「つながり」を感じとっているからではないでしょうか。
しかし現在の集合住宅は、一つの建物としての独立性が高く、地域から孤立しているように思います。
また、集合住宅といえば賃貸が多いです。固定的な者(京都に住まう人)と流動的な者(それ以外の人)が、繋がりをもち、自然と関わりあうことで、互いにいい刺激になりうるのではないかと考えます。
以上の考えのもとで、「地域との関係性」「生活環境の向上」について重視した集合住宅を提案します。

配置図
コンセプトは「表現する住まい」、「風と光と緑」としました。
・地域に開けた存在にするため、街路側にギャラリーを設ける
・職住一体タイプを設け、ワークスペースは道路側に配置
・集合住宅であっても刺激のある住まいとするプランに
・周囲の環境(自然の風と光)に触れる機会が少ないため、
これらを自然と感じとれるようにすること。

北から中庭を望む

リビング、ダイニング、キッチンは1Fにあり、一番広い空間にしました。
ここが家族だんらんの場で、家の中で一番多くの時間を過ごす場です。
家に着いた時、家の灯りが柔らかく漏れていて、ほっとしてこの家にまた帰ってきたいと感じるように、玄関側は格子窓にしています。
寝室を極力狭くしたのは、家にいるときに多くの時間を家族と過ごしてほしかったため、寝室は「寝るためだけの空間」にしたかったのと、家の外にあるものに目を向けて、外に出たいと感じてほしかったためです。

また、職住一体タイプも設計しました。居住者はものづくりや、アート等、人に魅せる職業や趣味の方。または外部の方にアピールしたいことがある方と設定しています。ワークスペースを街路側に設けることで、作業工程をプレゼンテーションすることができます。ギャラリーを設けたので、そこで個展を開くことも可能です。
コモンスペースは、子供たちが走り回っていて、お母さん方が立ち話をしているイメージ。

南側から中庭を望む
多目的室は雨の日の子供たちの遊び場になったり、ギャラリー関連のイベントやマンション内または近隣の方の集まりが行われたり。そして、その雰囲気が外から感じとれるように街路側に配置しました。
ギャラリー及び多目的室、管理人室の屋上は上がることも出来て、のんびりお昼寝や、ひなたぼっこをすることができます。夏は住人や近隣の方とバーベキューして、ビール飲めたら最高だなー!と思っていました。(笑)
全体的には家と家族のあたたかさや、近隣の方とつながりを持つことを重視して設計しました。

この課題に取り組みながら京都建築スクールに参加し、京都市内の現状や、未来の京都について考えてきました。その中で、現在一般化している集合住宅のカタチは京都には似合わないのではないかと思いました。
そして、京都の集合住宅の進化を願いながら設計しました。

今後も新たなカタチを提案していけたら、とでっかいことを思っています。笑
学校で学ぶのも残りわずかですが、もっと多くの知識をつけ、自身の思想を広げ、卒業設計もがんばります!
(くさかべさとみ)
西面ファサード
京都は都市でありながら、他の都市とは違う独特の雰囲気があるように感じます。
それは京都に昔から住むひとたちの間にある「つながり」を感じとっているからではないでしょうか。
しかし現在の集合住宅は、一つの建物としての独立性が高く、地域から孤立しているように思います。
また、集合住宅といえば賃貸が多いです。固定的な者(京都に住まう人)と流動的な者(それ以外の人)が、繋がりをもち、自然と関わりあうことで、互いにいい刺激になりうるのではないかと考えます。
以上の考えのもとで、「地域との関係性」「生活環境の向上」について重視した集合住宅を提案します。
配置図
コンセプトは「表現する住まい」、「風と光と緑」としました。
・地域に開けた存在にするため、街路側にギャラリーを設ける
・職住一体タイプを設け、ワークスペースは道路側に配置
・集合住宅であっても刺激のある住まいとするプランに
・周囲の環境(自然の風と光)に触れる機会が少ないため、
これらを自然と感じとれるようにすること。
北から中庭を望む
リビング、ダイニング、キッチンは1Fにあり、一番広い空間にしました。
ここが家族だんらんの場で、家の中で一番多くの時間を過ごす場です。
家に着いた時、家の灯りが柔らかく漏れていて、ほっとしてこの家にまた帰ってきたいと感じるように、玄関側は格子窓にしています。
寝室を極力狭くしたのは、家にいるときに多くの時間を家族と過ごしてほしかったため、寝室は「寝るためだけの空間」にしたかったのと、家の外にあるものに目を向けて、外に出たいと感じてほしかったためです。
また、職住一体タイプも設計しました。居住者はものづくりや、アート等、人に魅せる職業や趣味の方。または外部の方にアピールしたいことがある方と設定しています。ワークスペースを街路側に設けることで、作業工程をプレゼンテーションすることができます。ギャラリーを設けたので、そこで個展を開くことも可能です。
コモンスペースは、子供たちが走り回っていて、お母さん方が立ち話をしているイメージ。
南側から中庭を望む
多目的室は雨の日の子供たちの遊び場になったり、ギャラリー関連のイベントやマンション内または近隣の方の集まりが行われたり。そして、その雰囲気が外から感じとれるように街路側に配置しました。
ギャラリー及び多目的室、管理人室の屋上は上がることも出来て、のんびりお昼寝や、ひなたぼっこをすることができます。夏は住人や近隣の方とバーベキューして、ビール飲めたら最高だなー!と思っていました。(笑)
全体的には家と家族のあたたかさや、近隣の方とつながりを持つことを重視して設計しました。
この課題に取り組みながら京都建築スクールに参加し、京都市内の現状や、未来の京都について考えてきました。その中で、現在一般化している集合住宅のカタチは京都には似合わないのではないかと思いました。
そして、京都の集合住宅の進化を願いながら設計しました。
今後も新たなカタチを提案していけたら、とでっかいことを思っています。笑
学校で学ぶのも残りわずかですが、もっと多くの知識をつけ、自身の思想を広げ、卒業設計もがんばります!
(くさかべさとみ)
11月11日は荒壁塗りイベントの日。もっとも多くの方々が参加してくれるこの日だけが大雨とは。にもかかわらず、大勢の参加の方々が壁を塗りにお越しくださいました。

日本建築学会近畿支部の児玉事務長さんが子どもたちにやさしく語りかけます
大勢の参加の方々を迎え、1時からの組と3時からの組と2組に分かれて壁塗り体験をいたしました。
中には先月に小舞編みをしていただいた親子さんも見えています。準備万端、さあ、始めましょう。

塗り方始め!
まず最初は子どもたちから始まります。次第に親が塗りたくなってコテを奪うことになるのです。中にはしっかり親が塗りに来ましたと話されるご家族も。

13組の方々がところ狭しと頑張っておられます 最初の頃はまだ明るいですね
幅がおよそ90cm、高さが2.5mほどありますので、初心者にはなかなか簡単には塗り切れません。昨日の1年生も1時間半ほどはかかっていました。同じくらいの時間で後半の組にバトンタッチとなります。汚さないようゆっくりでかまわないので、がんばってね。

前半の時間終了!みんなお茶だよ〜! こうしてみるとたくさんの人ですね
2/3から3/4ほど塗れたところで時間となりました。ごくろうさま。温かいお茶とお菓子をどうぞ。疲れた表情の子どもたちが生き返ります。後半も頑張る?ううん、帰る。

後半の壁塗り風景 1時間ほどでもうこれだけ色が変わっています
後半の組は打って変わって、男親の活躍が目立ちます。前の組のし残した壁をどんどん塗り進め、部屋はたちまち暗くなってしまいました。気づいたら、外も暗くなっていました。前半の組で準備していた土がほとんど使い果たし、1年生たちはまた降りしきる雨の中、土を捏ねに出て運び出しました。塗るよりもたいへんな作業です。

後半組のお茶風景 身体が冷えて来ますので、温かいものをどうぞ
まだまだ塗りたそうな後半の方たちにも時間が来て、終わってもらいました。みなさん、ほんとうに一生懸命塗っていただいたおかげで1階の半分強の壁が塗れました。おつかれさまでした。

みなさんお帰りになって、がらんと静かになった現場
まだ雨が降っている中、みなさんお帰りになりました。さあ、1年生諸君、残りを片付けましょう!塗りかけの壁を手分けして塗りました。みんなずいぶん上手くなっています。道具もどんどん洗ってもらい、すべて片付き、最後は記念写真です。

1年生諸君、みんなよくやってくれました。ありがとう。おつかれさま!
(さのはるひと)
日本建築学会近畿支部の児玉事務長さんが子どもたちにやさしく語りかけます
大勢の参加の方々を迎え、1時からの組と3時からの組と2組に分かれて壁塗り体験をいたしました。
中には先月に小舞編みをしていただいた親子さんも見えています。準備万端、さあ、始めましょう。
塗り方始め!
まず最初は子どもたちから始まります。次第に親が塗りたくなってコテを奪うことになるのです。中にはしっかり親が塗りに来ましたと話されるご家族も。
13組の方々がところ狭しと頑張っておられます 最初の頃はまだ明るいですね
幅がおよそ90cm、高さが2.5mほどありますので、初心者にはなかなか簡単には塗り切れません。昨日の1年生も1時間半ほどはかかっていました。同じくらいの時間で後半の組にバトンタッチとなります。汚さないようゆっくりでかまわないので、がんばってね。
前半の時間終了!みんなお茶だよ〜! こうしてみるとたくさんの人ですね
2/3から3/4ほど塗れたところで時間となりました。ごくろうさま。温かいお茶とお菓子をどうぞ。疲れた表情の子どもたちが生き返ります。後半も頑張る?ううん、帰る。
後半の壁塗り風景 1時間ほどでもうこれだけ色が変わっています
後半の組は打って変わって、男親の活躍が目立ちます。前の組のし残した壁をどんどん塗り進め、部屋はたちまち暗くなってしまいました。気づいたら、外も暗くなっていました。前半の組で準備していた土がほとんど使い果たし、1年生たちはまた降りしきる雨の中、土を捏ねに出て運び出しました。塗るよりもたいへんな作業です。
後半組のお茶風景 身体が冷えて来ますので、温かいものをどうぞ
まだまだ塗りたそうな後半の方たちにも時間が来て、終わってもらいました。みなさん、ほんとうに一生懸命塗っていただいたおかげで1階の半分強の壁が塗れました。おつかれさまでした。
みなさんお帰りになって、がらんと静かになった現場
まだ雨が降っている中、みなさんお帰りになりました。さあ、1年生諸君、残りを片付けましょう!塗りかけの壁を手分けして塗りました。みんなずいぶん上手くなっています。道具もどんどん洗ってもらい、すべて片付き、最後は記念写真です。
1年生諸君、みんなよくやってくれました。ありがとう。おつかれさま!
(さのはるひと)
建工祭3日目は恒例のおもちつき。朝から餅米をふかして石臼で搗いていきます。今年はすべて1年生がやってくれています。

みんな田舎出身のわりに餅つきをやっていないようです。ちゃんと教えてやらなくちゃ。
一回に2升、5臼ついて1斗です。3時間近くはかかりますね。

みんなで餅をこねこねして丸めていきます。なんだか中世のピーターブリューゲルの絵のような風景ですね。いいもんです。餡も炊いて、白餅と餡餅とをつくります。丸くつくるのに失敗すると、食べていいという規則があります。失敗が美味しいんです。

5臼搗き終わる頃にはとうにお昼の時間。みんなで一緒にいただきます。でもじつはあんまりお腹空いてないです。もう2、3個は食べてしまってますので、。。。でも、つきたての柔らか餅を大根おろしで食べるのは、またお腹にどんどん入ってしまいます。お吸い物もよかった。今年ためしにつくってみた溶いた砂糖を混ぜて突き上げた柔か甘い餅にきな粉をまぶしたお餅。これがいけない、気がついたらずいぶん食べてしまってます。お腹が、お腹が、。。

食後、片付けをして、ご近所にお餅を配り、皆で堀川遊歩道のお茶室の前に集合。
記念写真を撮りました。
何人か通りかかった人が、
「おもちつきを見に来ました。どこでやっていますか?」
「お餅つきを見せたいと思って子どもを連れて来たのですが、。。」
あれあれ、案内が届いていませんでしたね〜。ごめんなさい。
来年はたいへんだけれども、このお茶室の前でお餅つきをやりましょう。
そのお餅でお茶をいただいてもらうことにしましょう。
これで今年の学園祭はおしまい。 みなさんお疲れさまでした。
(さのはるひと)
みんな田舎出身のわりに餅つきをやっていないようです。ちゃんと教えてやらなくちゃ。
一回に2升、5臼ついて1斗です。3時間近くはかかりますね。
みんなで餅をこねこねして丸めていきます。なんだか中世のピーターブリューゲルの絵のような風景ですね。いいもんです。餡も炊いて、白餅と餡餅とをつくります。丸くつくるのに失敗すると、食べていいという規則があります。失敗が美味しいんです。
5臼搗き終わる頃にはとうにお昼の時間。みんなで一緒にいただきます。でもじつはあんまりお腹空いてないです。もう2、3個は食べてしまってますので、。。。でも、つきたての柔らか餅を大根おろしで食べるのは、またお腹にどんどん入ってしまいます。お吸い物もよかった。今年ためしにつくってみた溶いた砂糖を混ぜて突き上げた柔か甘い餅にきな粉をまぶしたお餅。これがいけない、気がついたらずいぶん食べてしまってます。お腹が、お腹が、。。
食後、片付けをして、ご近所にお餅を配り、皆で堀川遊歩道のお茶室の前に集合。
記念写真を撮りました。
何人か通りかかった人が、
「おもちつきを見に来ました。どこでやっていますか?」
「お餅つきを見せたいと思って子どもを連れて来たのですが、。。」
あれあれ、案内が届いていませんでしたね〜。ごめんなさい。
来年はたいへんだけれども、このお茶室の前でお餅つきをやりましょう。
そのお餅でお茶をいただいてもらうことにしましょう。
これで今年の学園祭はおしまい。 みなさんお疲れさまでした。
(さのはるひと)
11月3日、いよいよお茶の本番の日です。朝から学校のお茶部メンバーががんばって準備をしていました。

代々お茶部で引き継がれているお着物があるのですが、クリーニングを重ねている内にどんどん小さくなって来ている様子。ずいぶん袖が短いなあ。

平成京町家に用事があって、午後ややあってから戻ってきました。下立ち売り通りの橋のアーチの向うにお茶室が見えています。ほう、こんな壁がついたんだ。お客さんが入っておられるようですね。くだんの屋根は、うん、なかなか長閑な感じがあっていいじゃないですか。左にちょこんとはねている辺り、寝癖みたいで愛嬌があります。

1年生部員がお点前をしたところでしょうか、拍手がでていますね。木村副理事長と一緒に、次の席でお茶をいただくことにしました。

にわか亭主の日下部さん、ずいぶん緊張している。でも、お着物姿の女性はいいですね。

この日のお菓子は緑寿庵清水のコンペイ糖。僕のは紫蘇味でした。もっと欲しいよ〜。屋根の新藁がいい感じです。そう言えば、昨日、塩澤さんがいい藁だと話していたとか。コシヒカリのような新しい品種は実の方に栄養が行くように改良されていて、その分、葉はあまり育っていないのだとか。これは餅米なので、あまり品種改良が進んでおらず、葉も長く、しっかりしていてよかったのでしょう。お茶、美味しかったよ。

う〜ん、お茶の先生らしき方が入られていますね。大丈夫かな〜。森田君なら落ち着いて捌けるでしょう。正面から見てもなかなかきれいな屋根です。破風の辺りをもう少しきちんとすれば、言う事無し。庵名を掲げてもよかったですね。

ちょっと近くから見上げて撮ってみました。隅の配付垂木が1本少ない?もう少し垂木を細くしてもいいですね。来年はもっとお茶室らしくあれこれ試してみてもいいでしょう。

お茶部員たちが一生懸命裏方をやってくれています。お茶席に入らず、ショウギでいただくお客さんもおられるので、点て出しをしています。おつかれさん。

福田校長も見えていますね。川端の桜かな、葉が散って屋根に2、3載っているのがいい感じです。
この後、夕べとなり、暗くなって、いよいよ手づくりの明かりが灯されるのですが、残念、先に帰ってしまいましたので、後日、その写真をご披露しましょう。
(さのはるひと)
代々お茶部で引き継がれているお着物があるのですが、クリーニングを重ねている内にどんどん小さくなって来ている様子。ずいぶん袖が短いなあ。
平成京町家に用事があって、午後ややあってから戻ってきました。下立ち売り通りの橋のアーチの向うにお茶室が見えています。ほう、こんな壁がついたんだ。お客さんが入っておられるようですね。くだんの屋根は、うん、なかなか長閑な感じがあっていいじゃないですか。左にちょこんとはねている辺り、寝癖みたいで愛嬌があります。
1年生部員がお点前をしたところでしょうか、拍手がでていますね。木村副理事長と一緒に、次の席でお茶をいただくことにしました。
にわか亭主の日下部さん、ずいぶん緊張している。でも、お着物姿の女性はいいですね。
この日のお菓子は緑寿庵清水のコンペイ糖。僕のは紫蘇味でした。もっと欲しいよ〜。屋根の新藁がいい感じです。そう言えば、昨日、塩澤さんがいい藁だと話していたとか。コシヒカリのような新しい品種は実の方に栄養が行くように改良されていて、その分、葉はあまり育っていないのだとか。これは餅米なので、あまり品種改良が進んでおらず、葉も長く、しっかりしていてよかったのでしょう。お茶、美味しかったよ。
う〜ん、お茶の先生らしき方が入られていますね。大丈夫かな〜。森田君なら落ち着いて捌けるでしょう。正面から見てもなかなかきれいな屋根です。破風の辺りをもう少しきちんとすれば、言う事無し。庵名を掲げてもよかったですね。
ちょっと近くから見上げて撮ってみました。隅の配付垂木が1本少ない?もう少し垂木を細くしてもいいですね。来年はもっとお茶室らしくあれこれ試してみてもいいでしょう。
お茶部員たちが一生懸命裏方をやってくれています。お茶席に入らず、ショウギでいただくお客さんもおられるので、点て出しをしています。おつかれさん。
福田校長も見えていますね。川端の桜かな、葉が散って屋根に2、3載っているのがいい感じです。
この後、夕べとなり、暗くなって、いよいよ手づくりの明かりが灯されるのですが、残念、先に帰ってしまいましたので、後日、その写真をご披露しましょう。
(さのはるひと)
- メニュー
- 最新記事
(07/28)
(07/10)
(07/02)
(06/17)
(06/16)
- 京都建築専門学校
京都市のど真ん中府庁前で、創立60年の伝統を誇る小さいけれど真面目な建築学校です。ユニークで色々な経験を持った先生たちが揃っています。平成24年度入学願書受付中!
- ブログ内検索
Copyright © 京都建築専門学校 ニュースレター All Rights Reserved.


