建築科2年の日下部です。前期の自由課題で集合住宅を制作しましたので、ご紹介いたします。

西面ファサード
京都は都市でありながら、他の都市とは違う独特の雰囲気があるように感じます。
それは京都に昔から住むひとたちの間にある「つながり」を感じとっているからではないでしょうか。
しかし現在の集合住宅は、一つの建物としての独立性が高く、地域から孤立しているように思います。
また、集合住宅といえば賃貸が多いです。固定的な者(京都に住まう人)と流動的な者(それ以外の人)が、繋がりをもち、自然と関わりあうことで、互いにいい刺激になりうるのではないかと考えます。
以上の考えのもとで、「地域との関係性」「生活環境の向上」について重視した集合住宅を提案します。

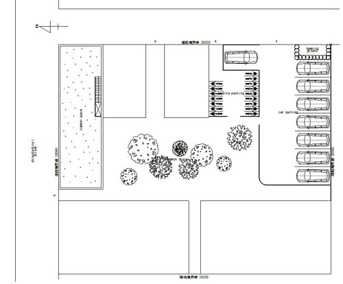
配置図
コンセプトは「表現する住まい」、「風と光と緑」としました。
・地域に開けた存在にするため、街路側にギャラリーを設ける
・職住一体タイプを設け、ワークスペースは道路側に配置
・集合住宅であっても刺激のある住まいとするプランに
・周囲の環境(自然の風と光)に触れる機会が少ないため、
これらを自然と感じとれるようにすること。

北から中庭を望む

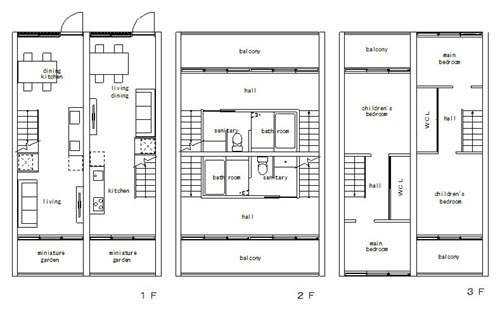
リビング、ダイニング、キッチンは1Fにあり、一番広い空間にしました。
ここが家族だんらんの場で、家の中で一番多くの時間を過ごす場です。
家に着いた時、家の灯りが柔らかく漏れていて、ほっとしてこの家にまた帰ってきたいと感じるように、玄関側は格子窓にしています。
寝室を極力狭くしたのは、家にいるときに多くの時間を家族と過ごしてほしかったため、寝室は「寝るためだけの空間」にしたかったのと、家の外にあるものに目を向けて、外に出たいと感じてほしかったためです。

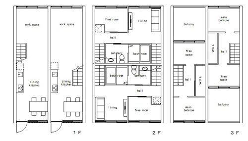
また、職住一体タイプも設計しました。居住者はものづくりや、アート等、人に魅せる職業や趣味の方。または外部の方にアピールしたいことがある方と設定しています。ワークスペースを街路側に設けることで、作業工程をプレゼンテーションすることができます。ギャラリーを設けたので、そこで個展を開くことも可能です。
コモンスペースは、子供たちが走り回っていて、お母さん方が立ち話をしているイメージ。

南側から中庭を望む
多目的室は雨の日の子供たちの遊び場になったり、ギャラリー関連のイベントやマンション内または近隣の方の集まりが行われたり。そして、その雰囲気が外から感じとれるように街路側に配置しました。
ギャラリー及び多目的室、管理人室の屋上は上がることも出来て、のんびりお昼寝や、ひなたぼっこをすることができます。夏は住人や近隣の方とバーベキューして、ビール飲めたら最高だなー!と思っていました。(笑)
全体的には家と家族のあたたかさや、近隣の方とつながりを持つことを重視して設計しました。

この課題に取り組みながら京都建築スクールに参加し、京都市内の現状や、未来の京都について考えてきました。その中で、現在一般化している集合住宅のカタチは京都には似合わないのではないかと思いました。
そして、京都の集合住宅の進化を願いながら設計しました。

今後も新たなカタチを提案していけたら、とでっかいことを思っています。笑
学校で学ぶのも残りわずかですが、もっと多くの知識をつけ、自身の思想を広げ、卒業設計もがんばります!
(くさかべさとみ)
西面ファサード
京都は都市でありながら、他の都市とは違う独特の雰囲気があるように感じます。
それは京都に昔から住むひとたちの間にある「つながり」を感じとっているからではないでしょうか。
しかし現在の集合住宅は、一つの建物としての独立性が高く、地域から孤立しているように思います。
また、集合住宅といえば賃貸が多いです。固定的な者(京都に住まう人)と流動的な者(それ以外の人)が、繋がりをもち、自然と関わりあうことで、互いにいい刺激になりうるのではないかと考えます。
以上の考えのもとで、「地域との関係性」「生活環境の向上」について重視した集合住宅を提案します。
配置図
コンセプトは「表現する住まい」、「風と光と緑」としました。
・地域に開けた存在にするため、街路側にギャラリーを設ける
・職住一体タイプを設け、ワークスペースは道路側に配置
・集合住宅であっても刺激のある住まいとするプランに
・周囲の環境(自然の風と光)に触れる機会が少ないため、
これらを自然と感じとれるようにすること。
北から中庭を望む
リビング、ダイニング、キッチンは1Fにあり、一番広い空間にしました。
ここが家族だんらんの場で、家の中で一番多くの時間を過ごす場です。
家に着いた時、家の灯りが柔らかく漏れていて、ほっとしてこの家にまた帰ってきたいと感じるように、玄関側は格子窓にしています。
寝室を極力狭くしたのは、家にいるときに多くの時間を家族と過ごしてほしかったため、寝室は「寝るためだけの空間」にしたかったのと、家の外にあるものに目を向けて、外に出たいと感じてほしかったためです。
また、職住一体タイプも設計しました。居住者はものづくりや、アート等、人に魅せる職業や趣味の方。または外部の方にアピールしたいことがある方と設定しています。ワークスペースを街路側に設けることで、作業工程をプレゼンテーションすることができます。ギャラリーを設けたので、そこで個展を開くことも可能です。
コモンスペースは、子供たちが走り回っていて、お母さん方が立ち話をしているイメージ。
南側から中庭を望む
多目的室は雨の日の子供たちの遊び場になったり、ギャラリー関連のイベントやマンション内または近隣の方の集まりが行われたり。そして、その雰囲気が外から感じとれるように街路側に配置しました。
ギャラリー及び多目的室、管理人室の屋上は上がることも出来て、のんびりお昼寝や、ひなたぼっこをすることができます。夏は住人や近隣の方とバーベキューして、ビール飲めたら最高だなー!と思っていました。(笑)
全体的には家と家族のあたたかさや、近隣の方とつながりを持つことを重視して設計しました。
この課題に取り組みながら京都建築スクールに参加し、京都市内の現状や、未来の京都について考えてきました。その中で、現在一般化している集合住宅のカタチは京都には似合わないのではないかと思いました。
そして、京都の集合住宅の進化を願いながら設計しました。
今後も新たなカタチを提案していけたら、とでっかいことを思っています。笑
学校で学ぶのも残りわずかですが、もっと多くの知識をつけ、自身の思想を広げ、卒業設計もがんばります!
(くさかべさとみ)
PR
グループテーマ:
「内側に共有のグリーンスペースを設ける」
まずはグリーンスペースに対し、プライベートとパブリックをどう線引きするのか、という所から考えていきました。
できるだけパブリック対し前向きにアプローチしてみようと思い、グリーンスペースを1つの部屋と考えてみることにしました。そのためにまずそれぞれの個室を完全には区切らず、居間を中心としてすべてに繋がりを持たせようと思い、通り土間、吹き抜け、階段などを使い、全体で緩やかに一体感を持たせることで、グリーンスペースとも違和感なく接することができないかと思い進めていきました。
肝心のグリーンスペースへ繋げる仕掛けについては、良い案が浮かばずにただ少し大きめの開口部にデッキをつけただけとなってしまい、思っていたものを形にすることができませんでした。また、グリーンスペースを主軸に考えていたことで、配置計画が少し窮屈になってしまい、納得のいくものに出来ず、設計することの難しさを実感しました。
次回の設計課題では、この経験を生かし、少なくとも納得のいくものに仕上げたいと思います。
建築科1年 土屋祥太
家族みんなでくつろげる和風の家


この住宅のコンセプトは家族がみんなでくつろげる空間をつくることです。まずはじめに、家の中心にリビングダイニングをおいて、家族がここに集まるようにしました。リビングに畳の部屋を設けることで、よりくつろげるスペースをつくり、また、その畳の部屋から庭をながめることができ、縁側へ行くこともできます。 開口部の窓を大きくとり、庭を部屋の中からながめる開放感のある空間になっています。
次に、祖母の部屋と夫婦の部屋を家の両端につくり、お互いのプライベートな空間とし、適度な距離感を保ちます。外装については、和風住宅をテーマにしているので、屋根にいぶし瓦、壁はぬり壁で仕上げました。玄関までのアプローチをとび石にして、庭を見ながら、訪れる人の目を楽しませるよう設計しました。
建築科1年 村田 亘
次に、祖母の部屋と夫婦の部屋を家の両端につくり、お互いのプライベートな空間とし、適度な距離感を保ちます。外装については、和風住宅をテーマにしているので、屋根にいぶし瓦、壁はぬり壁で仕上げました。玄関までのアプローチをとび石にして、庭を見ながら、訪れる人の目を楽しませるよう設計しました。
建築科1年 村田 亘
「外でも中でも快 HOUSE」
私は、山荘・ログハウスのグループで、ログハウスを設計しました。
この家のテーマは、「外でも中でも快 HOUSE」。
外見は、ウッドデッキと一体化にし、大きく堂々としたバランスのよい家。内観は、動線を意識し、丸太の雰囲気を味わえる家。をコンセプトにし、設計しました。
まず、敷地は、将来のことを考え、敷地を持て余さないよう心がけ、ウッドデッキを広くとりました。キッチン側に家庭菜園を設けて、キッチンに立った際に窓から様子が見えるようにしました。
つぎに、ウッドデッキについては、二カ所あり、東側は、テーマに沿って屋根を設け天候を気にせず、家事(洗濯物干し)や、休日に趣味、こどもたちは、走り回れる。といった、「外であり、中にも思える。」という空間にしました。南側も同じですが、リビング・ダイニングのスペースがもともと狭くなってしまったので、「外に続くダイニング・リビング」をつくりました。
各階については、1Fは、動線を考え、水周りを一カ所にまとめることに心がけました。2Fは、こども部屋だけにし、吹き抜けを多くとりました。こども部屋は、将来を考え、仕切れるようにしました。
最後に、所々、中途半端なところがあり、今少しずつ完成させているところです。ログハウスを設計してみて、普段授業では習わない丸太のこと、ログハウスのつくりや、良さを学び、納得のいく設計ができ、楽しかったです。今回は、ログハウスでしたが、時間をみつけ、また新たに住宅を考えようと思っています。
建築科1年 塚本美保
- メニュー
- 最新記事
(07/28)
(07/10)
(07/02)
(06/17)
(06/16)
- 京都建築専門学校
京都市のど真ん中府庁前で、創立60年の伝統を誇る小さいけれど真面目な建築学校です。ユニークで色々な経験を持った先生たちが揃っています。平成24年度入学願書受付中!
- ブログ内検索
Copyright © 京都建築専門学校 ニュースレター All Rights Reserved.


